Laden in der Innenstadt Offenbach


- Objektart
- Laden/Einzelhandel
- Objekttyp
- Einzelhandelsladen
- Vermarktungsart
- Miete
- PLZ
- 63065
- Ort
- Offenbach
- ImmoNr
- 00065
- Kaltmiete
- 3.000,00 €
- Außen-Provision
- 3 Monatsmieten zzgl. MwSt.
- Kaution
- 3 Monatsmieten
Beschreibung
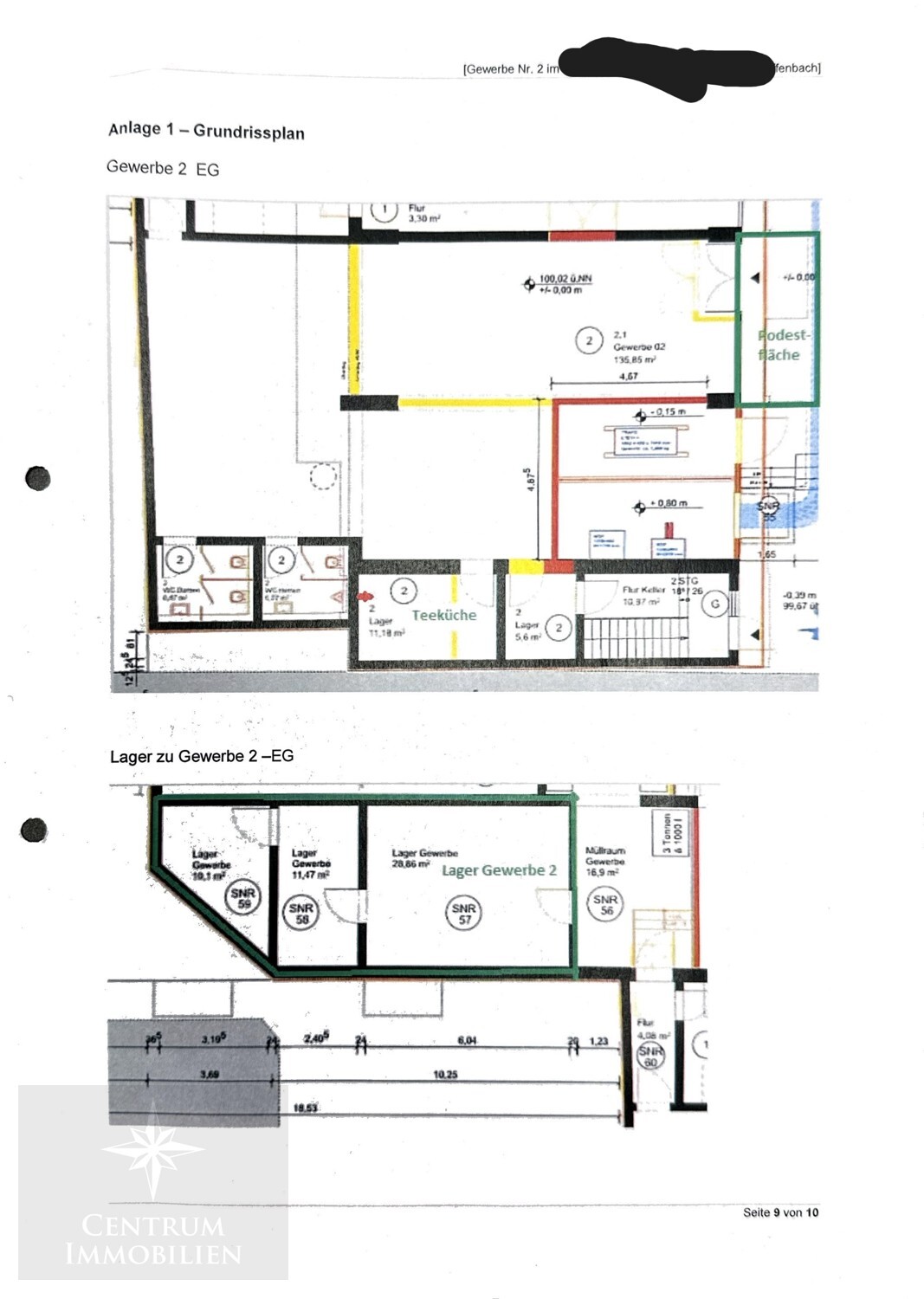
Die Ladenfläche ist komplett modern renoviert und sofort bezugsbereit.Insgesamt gibt es 120 m² Verkaufsfläche und zusätzlich 60 m² Lagerraum im Hinterbereich.
Die Miete ist günstig – ideal für Existenzgründer oder kleine Unternehmen.
Das Geschäft eignet sich perfekt für viele Branchen, zum Beispiel:
– Kiosk oder Lebensmittelgeschäft
– Kosmetikstudio oder Barbershop
– Nagelstudio oder Boutique
Die Fläche ist hell, offen und flexibel nutzbar. Große Fenster sorgen für gute Sichtbarkeit von außen.
Jetzt besichtigen und durchstarten!
Lage
Sie suchen einen Nachfolger? Wir finden auch für Sie einen geeigneten Nachfolger für ihr Geschäft. Egal, ob Einzelhandel, Gastronomie, Großhandel oder ein Handwerksbetrieb.Unsere Angaben beruhen auf den vom Auftraggeber erteilten Auskünften. Für unrichtige Angaben haften wir nur bei Vorsatz und grober Fahrlässigkeit. Die Weitergabe dieses Angebots an Dritte ist nur mit unserer ausdrücklichen und schriftlichen Zustimmung zulässig.
Ladenfläche • Laden • Ladenlokal • Supermarkt • Verkaufsfläche • Kiosk • Einzelhandel • SB-Markt • Geschäft • Getränkemarkt •
Ansprechpartner
Herr Erol Erdem
Friedberger Landstraße 78
60316 Frankfurt
Telefon1
01714758815
defaultemail
office@centrumimmobilien.com
Seiten: 1
