Einzelhandelsfläche mit breiter Schaufensterfront direkt an der Hauptstraße

















- Objektart
- Laden/Einzelhandel
- Objekttyp
- Einzelhandelsladen
- Vermarktungsart
- Miete
- PLZ
- 63075
- Ort
- Offenbach
- ImmoNr
- 00057
- Kaltmiete
- 4.200,00 €
- Baujahr
- 1970
- Außen-Provision
- 3 Monatsmieten zzgl. MwSt.
- Kaution
- 3 Monatsmieten
Beschreibung
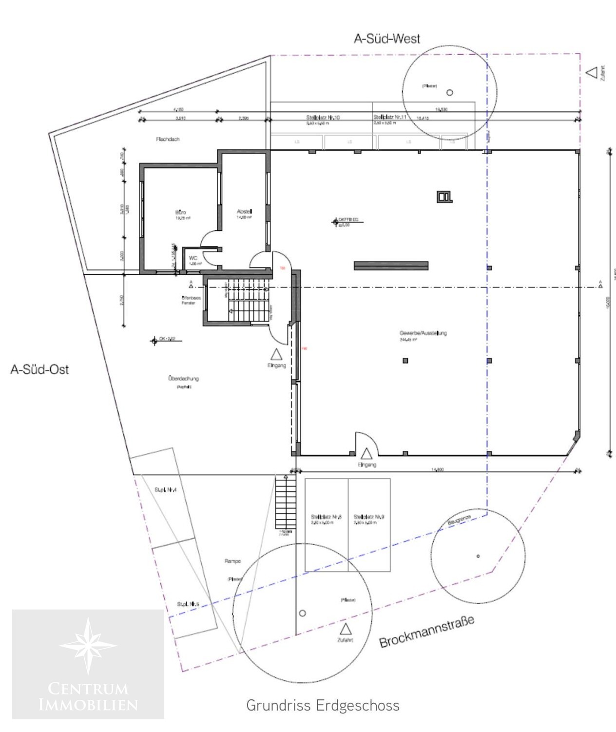
Ideal für Einzelhandel, Showroom, Studio oder ähnliche gewerbliche Nutzung mit Bedarf an Präsentationsfläche und Sichtbarkeit zur Straße.Repräsentative Ladenfläche mit ca. 280 m² im Erdgeschoss eines Gebäudes an der stark frequentierten Mülheimer Straße in Offenbach. Die großzügige Schaufensterfront erstreckt sich über nahezu die gesamte Breite und bietet ausgezeichnete Sichtbarkeit für Einzelhandelskonzepte oder Showroom-Nutzungen.
Zum Objekt gehören zudem 6 eigene Stellplätze, die sowohl für Kunden als auch für Mitarbeiter einen deutlichen Mehrwert darstellen.
Karte
Sonstige Angaben
Sie suchen einen Nachfolger? Wir finden auch für Sie einen geeigneten Nachfolger für ihr Geschäft. Egal, ob Einzelhandel, Gastronomie, Großhandel oder ein Handwerksbetrieb.Unsere Angaben beruhen auf den vom Auftraggeber erteilten Auskünften. Für unrichtige Angaben haften wir nur bei Vorsatz und grober Fahrlässigkeit. Die Weitergabe dieses Angebots an Dritte ist nur mit unserer ausdrücklichen und schriftlichen Zustimmung zulässig.
Ladenfläche • Laden • Ladenlokal • Supermarkt • Verkaufsfläche • Verbrauchermarkt • Einzelhandel • SB-Markt • Geschäft • Fitness • Getränkemarkt •
Ansprechpartner
Herr Erol Erdem
Friedberger Landstraße 78
60316 Frankfurt
Telefon1
01714758815
defaultemail
office@centrumimmobilien.com
Seiten: 1
